Description
Cette magnifique villa Belle Époque offre une vue imprenable sur la mer Méditerranée et se trouve à 10 minutes de Monaco. Bien que l’intérieur attende une rénovation complète, il présente une opportunité passionnante pour une transformation personnalisée, permettant aux propriétaires de concevoir la maison de leurs rêves dans les intérieurs expansifs et flexibles. Au-delà des possibilités de rénovation, la propriété offre un espace d’expansion, avec de vastes terrains permettant d’agrandir les espaces de vie ou d’ajouter des équipements pour améliorer le style de vie global.
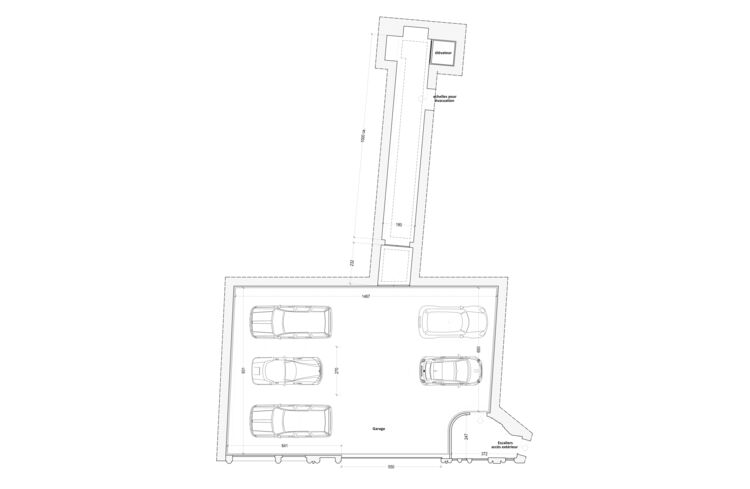
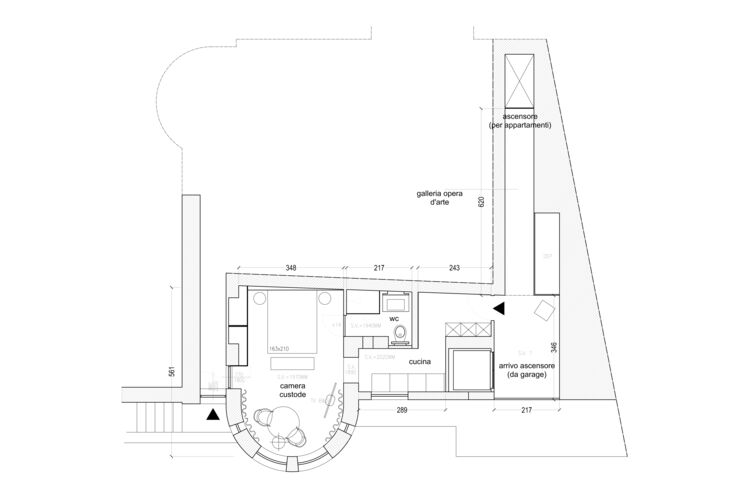
La résidence dispose d’une remarquable terrasse sur le toit, offrant des vues panoramiques pour des moments extérieurs hors du commun. De plus, une spacieuse terrasse avant offre un cadre idéal pour les repas en plein air et pour profiter des journées ensoleillées tout en admirant le magnifique environnement. Avec un garage sécurisé pour plusieurs véhicules et un tunnel pratique en construction pour un accès exclusif, cette propriété est une trouvaille rare, offrant un potentiel de rénovation, des possibilités d’expansion et des vues incomparables – un mélange parfait pour un style de vie luxueux sur la Côte d’Azur.
Map

