Descrizione
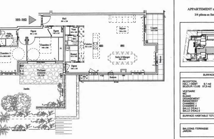
Con una generosa superficie di 113,1 m², è composto da un ampio e luminoso soggiorno con cucina a vista, due camere da letto, ognuna con il proprio bagno, nonché una terrazza balcone di 17 m², una terrazza loggia di 13 m² e una terrazza giardino di 54 m², Perfetto per godersi al meglio la vita all'aria aperta.
Tutto è stato pensato per il massimo comfort: aria condizionata reversibile, tapparelle elettriche.
A completare questa eccezionale proprietà, l'appartamento dispone anche di una cantina e di un posto auto.
Immersa in un ambiente verde e tranquillo, questa proprietà è una vera oasi di pace.
Map

