Descrizione
Esclusiva villa contemporanea di 300 m² situata nel cuore della privilegiata e ricercata Cap Martin, in un ambiente tranquillo. Questa moderna proprietà è stata ristrutturata secondo uno standard molto elevato e viene venduta completamente arredata.
Disposta su due livelli, la villa si trova in un terreno di 1.595 m², con una bella terrazza riparata da un pergolato a bordo piscina e un ampio giardino perfettamente utilizzabile su un unico livello che circonda la villa. La villa gode inoltre di una vista ininterrotta sul Mar Mediterraneo e di un'abbondante esposizione al sole.
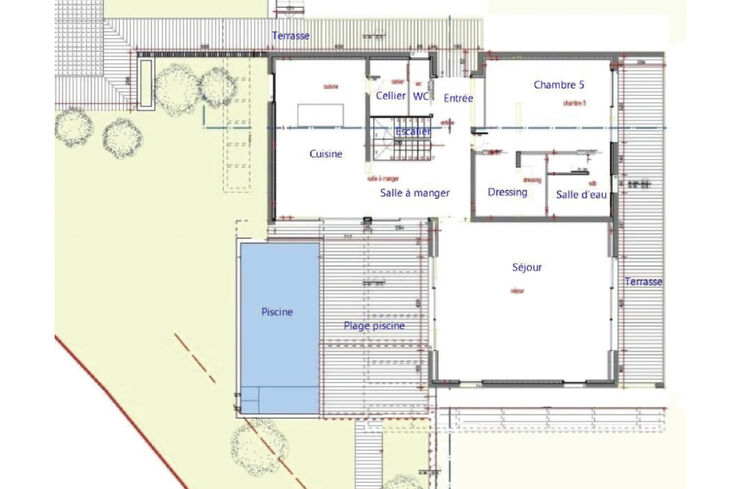
Il piano terra comprende un ingresso, un ampio soggiorno che si apre a est su una terrazza e a ovest sulla piscina. Una camera da letto principale con spogliatoio e bagno che si apre sulla terrazza esposta a est. Una cucina completamente attrezzata con dispensa e sala da pranzo adiacenti e un bagno per gli ospiti.
Al livello del giardino, quattro camere da letto con bagno con doccia e una camera da letto con bagno privato. Una delle camere da letto è attualmente utilizzata come palestra. Uno spogliatoio, un corridoio e un ripostiglio.
Completano la proprietà un parcheggio con pergolato per diversi veicoli e un punto di ricarica elettrica.
A soli 15 minuti di auto dal Principato di Monaco e a pochi passi dal centro città e da tutti i suoi servizi.
La diagnostica è in corso.
Le spese di agenzia sono a carico del venditore.
“Les informations sur les risques auxquels ce bien est exposé sont disponibles sur le site Géorisques http://georisques.gouv.fr
Map

